Intensjonen med detaljplanen er å gi rom for vidareutvikling av verksemda i Hervik med eit nytt butikklokale, leilegheiter og mogleg serveringsverksemd. Båthamna og sal av drivstoff hald fram.
Vidareutvikling
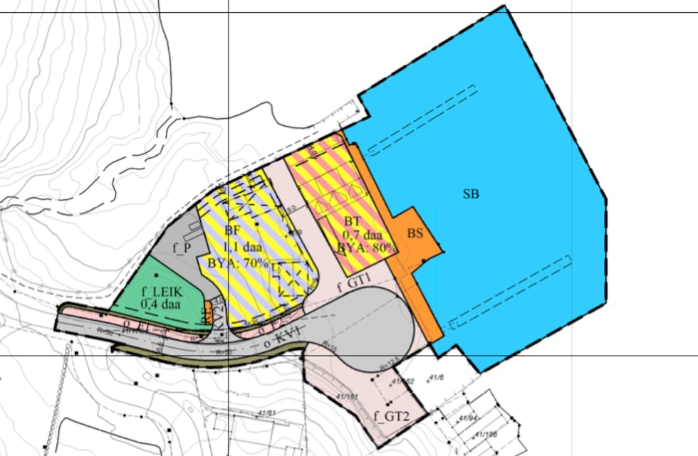
Det er Omega Areal AS som på vegne av grunneigar Rune Romseland og Berge Sag AS har utarbeidd forslaget til detaljreguleringsplanen for Hervik Brygge. Planområdet er omlag 10 daa stort og ligg på vestsida av Hervikvågen. Arealføremåla i planen er kombinerte byggeområde for bustad/forretning og bustad/tenesteyting, leikeplass, køyreveg, fortau, gatetun og småbåtanlegg i sjø og på land.
Formålet med planen er å gi rom for vidareutvikling av verksemda med eit nytt butikklokale, leilegheiter og mogleg serveringsverksemd i det eksisterande butikklokalet.
Les meir om saka i papirutgåva på torsdag…
