Rådmannen legg opp til ei investeringssak til hausten der endeleg godkjenning av bygging kan bli vedtatt.
– Det er det neste store arbeidsmålet nå. For kort tid sidan gjekk me gjennom status med politikarane våre og fekk samla dei spørsmåla som har vore, og er, rundt dette prosjektet. Det var eit godt møte og me er nå klare til å ta fatt på oppløpssida i planarbeidet, seier rådmann Sigurd Eikje.
– Det har vore ein del spørsmål frå politikarane og ein del ting som har vore uklart. Fekk ein svar på dette nå?
– Ja, me fekk ein god dialog og dei fekk sjå dei planane som er klare, og ei oppdatering på dei utfordringane som framleis ligg i prosjektet. Dette var eit viktig møte på mange måtar, seier Eikje.
120
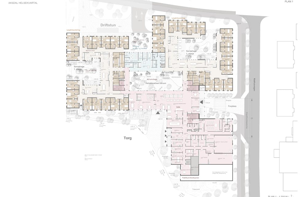
Som ein ser av teikningane er det eit kompakt, men likevel lyst og ope prosjekt arkitektane har lagt fram. Annbjørg Lunde, kommunalsjef helse og meistring er glad for at ein nå kan fortelje litt om innhaldet i kvartalet.
– Målet er at Helsekvartalet skal være ein god heim for bebuaren, og ein god stad å være pårørande, besøkande og frivillig. Det skal også være ein god arbeidsplass der den enkelte medarbeidar opplever å bruke sin kompetanse og utvikle den i samspel med andre. Difor har det vore ein grundig prosess i forkant, og innspela frå brukarar, tilsette, verneombod, tillitsvalte og leiarar i tenestene har vore både viktige og nødvendige, seier Lunde.
– Kor mange sjukeheimsplassar er det planlagt?
– Helsekvartalet erstattar dei sjukeheimsplassane me har i dag, og vil bestå av 120 bustadar med heildøgns bemanning.
– Er det nok?
– Med den framskrivinga me har i dag vil det ikkje vere nok plassar fram mot 2050, Helsekvartralet må sjåast i samband med korleis ein løyser boligpolitikken i Tysvær.
John-Fredrik Rognsvaag, samfunnsutviklingssjef i kommunen viser fleire bilete og planteikningar av slik det kan bli.
– Heimetenestene vil ha sine lokalar her, det same vil fysio- og ergoterapitenesta, ressurs- og tenestekontoret, og administrasjon tilhøyrande psykisk helse og rus. Dagaktivitetstilbod og produksjonskjøkken er også planlagt inn i bygget, seier Rognsvaag og viser fram eit plankart med mange detaljar og løysningar.
– Helsekvartalet vil utfordre oss til å finne nye måtar både å jobbe og organisere oss på. Bygget legg til rette for fleksibilitet og samhandling på tvers, og områder som er tiltenkt tilsette kallast «nabolag» og ligg sentralt i kvar etasje. Alle skal ha tilgjengelege rom eller soner å jobbe i, men det vil ikkje være namn på dørene eller øyremerka vaktrom. Det handlar om å utnytte arealet mest mogleg effektivt. Me er framleis i ein spennande fase der det er rom for gode tankar og løysingar, smiler Rognsvaag.
I månadane som kjem vil det framleis bli jobba med detaljar og planar. Når det blir gravemaskin å sjå på tomta er framleis litt vanskeleg å seie.
– Først må me få ei politisk sak som gir det endelege grøne lyset. Når det kjem så kan det bli oppstart i 2025 og lys i romma to år seinare. Det vil bli aktivitet i tomta før det, først fordi det er eit prosjekt langs vegen, og så skal ein fjerne det gamle legesenteret som ligg i krysset. Men oppstart for sjølve Helsekvartalet skjer ikkje før tidlegast i 2025, om politikarane vil, smiler Sigurd Eikje.
Politikarane som nå har fått siste nytt får ei ny løypemelding i formannskapet 13. februar og som nemnt så er målet å ha den endelege politiske saka klar til kommunestyret enten i oktober eller november.







